Casa indipendente in vendita

Foggia, Ss16 Km 667
€ 59.000
Prezzo aggiornato
3 locali 3 locali
96 Mq 96 Mq
1 bagno 1 bagno

Casa indipendente in vendita

Foggia, Ss16 Km 667

Descrizione annuncio

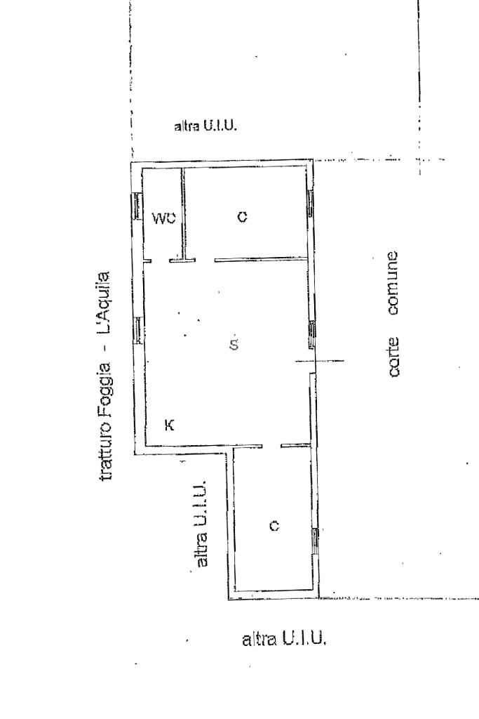
SS16 - KM 667 - In posizione adiacente al Mobilificio Barbarossa, in contesto recintato, disponiamo di soluzione indipendente composta da 3 VANI oltre accessori ed ulteriore camera soppalcata.

L'immobile si presenta in ottimo stato con pavimentazione in gres porcellanato effetto pietra, infissi in legno con doppio vetro, zanzariere ed inferriate, porte in legno, porta blindata ed impianti in ottimo stato.

Completa la soluzione corte comune antistante l'immobile.

Seguici su Facebook cliccando 'mi piace' sulla pagina Agenzia Tecnocasa Foggia Immacolata o contattaci attraverso il nostro canale Whatsapp al numero 371.4123892 per avere maggiori informazioni sui nostri immobili.
Scarica gratuitamente anche l'App Tecnocasa sul tuo smartphone per essere sempre aggiornato sulle nostre proposte di vendita e locazione.

Mostra tutto

Caratteristiche

Rif.:
61000005
Piano:
Basso di 1
Totale piani:
1
Posti auto:
1
Camere da letto:
2
Arredamento:
Parziale
Mostra tutto
Prezzo Prezzo
€ 59.000
Rata mutuo Rata mutuo
€ 272 / mese
Spese annue Spese annue
€ 0
Proponi il tuo prezzoProponi il tuo prezzo

Classe Energetica

D
D
D
D
D
D
D
D
D
Anno di costruzione:
2000
Riscaldamento:
Autonomo
Tipo impianto:
A radiatori
Tipo alimentazione:
Metano

Prezzo ridotto di €1 (16%%)

Ti interessa visionare l'immobile?

Fissa un appuntamento  Fissa un appuntamento

Richiedi informazioni

* Questi campi sono obbligatori

Calcola il tuo mutuo

Semplice e senza impegno
Anticipo

( % )
Mutuo

( % )

pochi semplici passi

inserisci i tuoi dati
Questionario completato
Grazie per aver richiesto un appuntamento senza impegno con un nostro Consulente del Credito e Assicurativo.

Hai inserito correttamente tutti i dati necessari e a breve riceverai una e-mail con un link da convalidare per inviare i tuoi dati.
Affiliato
Fovea Group Sas
Viale Cristoforo Colombo, 6 71121 Foggia (FG)

Il nostro staff


  • Filippo Martucci
    Affiliato

  • Rosanna D' Agnone
    Coordinatrice

  • Flavio Galano
    Collaboratore

  • Andrea Mancini
    Collaboratore
Viale Cristoforo Colombo, 6 71121 Foggia (FG)
Zona: Foggia-Immacolata-Viale Michelangelo-P.zza Padre Pio
Mostra su mappa
Orari: dal lunedì al venerdì mattina dalle ore 9.00 alle 13.00 pomeriggio dalle ore 16.00 alle 20.00; sabato dalle ore 9.00 alle ore 13.00.
Affiliato
Fovea Group Sas
Viale Cristoforo Colombo, 6 71121 Foggia (FG)

2025 Tecnocasa Franchising S.p.A. - P. IVA 08365160152 - Via Monte Bianco 60/A 20089 Rozzano (MI). Ogni agenzia ha un proprio titolare ed è autonoma. Privacy policy | Policy utilizzo | Cookie policy