Bilocale in vendita

Foggia, Via Monte Grappa - Centro
€ 55.000
Prezzo aggiornato
2 locali 2 locali
56 Mq 56 Mq
1 bagno 1 bagno

Bilocale in vendita

Foggia, Via Monte Grappa - Centro

Descrizione annuncio

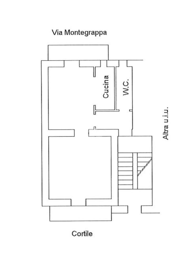
Zona Stazione - Via Montegrappa - In zona centrale proponiamo in vendita appartamento al piano basso con posto auto condominiale in cortile recintato, composto da 2 VANI oltre accessori.

L’immobile si compone di ingresso, soggiorno, cucinino, camera da letto e bagno, con doppia esposizione che garantisce buona luminosità e aerazione degli ambienti. Il riscaldamento è autonomo e lo stato manutentivo è buono.

Completano la soluzione due balconi e la comodità di un posto auto condominiale. Le spese condominiali sono contenute.

Attualmente l’appartamento è locato con ottima rendita mensile sino a fine 2026, rappresentando un’interessante opportunità anche per chi desidera effettuare un investimento in una zona servita e ben collegata.

Mostra tutto

Nelle vicinanze

Trasporto pubblico Trasporto pubblico
stazione di Foggia
stazione di Foggia
340 m
Monte Sabotino
Monte Sabotino
210 m
Trasporto pubblico
250 m
Ricariche auto elettriche Ricariche auto elettriche
Concessionario Nissan Renauto S.P.A.
810 m
Daunia Soccorso Foggia | EnelX
1,1 Km
Enel PAN Foggia Viale degli Aviatori
1,9 Km
Scuole Scuole
Lorenzo Scillitani
230 m
Università di Foggia _ Dipartimento di Economia
330 m
Università di Foggia - Aula Magna
380 m
Università degli Studi di Foggia
410 m
Scuole
540 m
Farmacia Farmacia
Farmacia della Stazione
340 m
Farmacia
510 m
Telesforo
570 m
San Ciro
640 m
Farmacia Dott.ssa di Ruberto
740 m
Ospedali Ospedali
ASL FG
1,0 Km
Casa di Cura "Maria Grazia Barone"
1,2 Km
Clinica Colonnello D'Avanzo
1,5 Km
Dipartimento Dipendenze Patologiche
1,7 Km
Clinica S. Francesco
2,4 Km
Supermercati Supermercati
Convì
390 m
Eurospin
620 m
Martucci Uno
650 m
Dok Supermercati
660 m
La Prima
700 m
Negozi Negozi
The Other Side Man
440 m
MaleFemale
480 m
Uli-Style
520 m
L'Antica Bottega
600 m
Halfon
640 m
Bar Bar
Wals Bar
550 m
Bar Pasticceria Catalano
590 m
Gelateria Gabrielino
610 m
Gran Caffè Moderno
610 m
Caffetteria napoletana
660 m
Ristoranti Ristoranti
Pizza e Sfizi
610 m
Barbecue
610 m
Bistrò
630 m
Sorsi e Morsi
670 m
Kaminetto
690 m
Mostra tutto

Caratteristiche

Rif.:
61184175
Piano:
1 di 2 (Piano basso)
Posti auto:
1
Balconi:
2
Camere da letto:
1
Arredamento:
Assente
Mostra tutto
Prezzo Prezzo
€ 55.000
Rata mutuo Rata mutuo
€ 261 / mese
Spese annue Spese annue
€ 300
Proponi il tuo prezzoProponi il tuo prezzo

Classe Energetica

E
E
E
E
E
E
E
E
E
Anno di costruzione:
1962
Riscaldamento:
Autonomo
Tipo impianto:
A radiatori
Tipo alimentazione:
Metano

Prezzo ridotto di €1 (7%%)

Ti interessa visionare l'immobile?

Fissa un appuntamento  Fissa un appuntamento

Richiedi informazioni

Clicca su Leggi per aprire l'informativa
* Questi campi sono obbligatori

Calcola il tuo mutuo

Semplice e senza impegno
Anticipo

( % )
Mutuo

( % )

pochi semplici passi

inserisci i tuoi dati
Questionario completato
Grazie per aver richiesto un appuntamento senza impegno con un nostro Consulente del Credito e Assicurativo.

Hai inserito correttamente tutti i dati necessari e a breve riceverai una e-mail con un link da convalidare per inviare i tuoi dati.
Affiliato
Fovea Group Sas
Viale Cristoforo Colombo, 6 71121 Foggia (FG)

Il nostro staff


  • Filippo Martucci
    Affiliato

  • Rosanna D' Agnone
    Coordinatrice

  • Erika Bernardo
    Coordinatrice

  • Flavio Galano
    Collaboratore
Viale Cristoforo Colombo, 6 71121 Foggia (FG)
Zona: Foggia-Immacolata-Viale Michelangelo-P.zza Padre Pio
Mostra su mappa
Orari: dal lunedì al venerdì mattina dalle ore 9.00 alle 13.00 pomeriggio dalle ore 16.00 alle 20.00; sabato dalle ore 9.00 alle ore 13.00.
Affiliato
Fovea Group Sas
Viale Cristoforo Colombo, 6 71121 Foggia (FG)

2026 Tecnocasa Franchising S.p.A. - P. IVA 08365160152 - Via Monte Bianco 60/A 20089 Rozzano (MI). Ogni agenzia ha un proprio titolare ed è autonoma. Privacy policy | Policy utilizzo | Cookie policy