Trilocale in vendita

Foggia, Corso Roma - Immacolata
€ 179.000
3 locali 3 locali
100 Mq 100 Mq
2 bagni 2 bagni

Trilocale in vendita

Foggia, Corso Roma - Immacolata

Descrizione annuncio

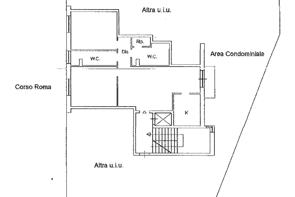
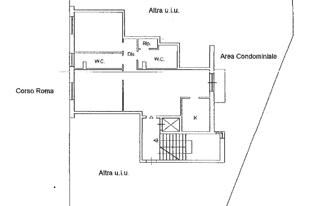
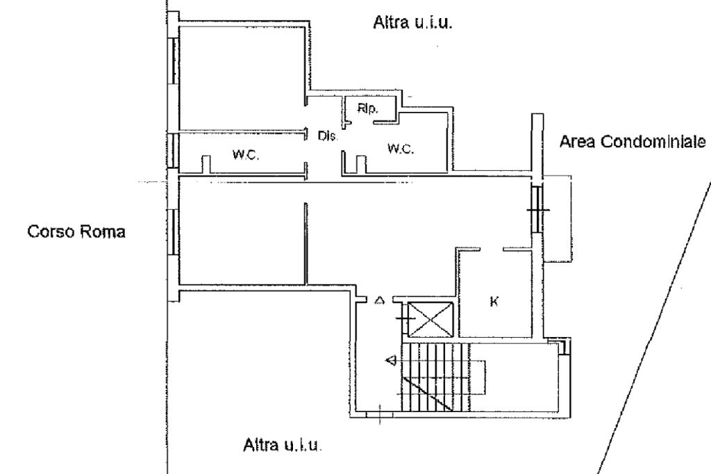
Corso Roma - In zona centrale, all’interno di uno stabile signorile fine anni '90 dotato di ascensore, proponiamo un appartamento composto da 3 VANI oltre accessori di cui doppi servizi, che unisce eleganza, comfort e funzionalità in un contesto curato e riservato.

Posto al piano medio con doppia esposizione, l’immobile si distingue per la luminosità degli ambienti e per una distribuzione degli spazi studiata per garantire vivibilità e armonia.

L'immobile è stato ristrutturato completamente nel 2020, le finiture valorizzano ulteriormente la proprietà: pavimentazione unica in gres porcellanato effetto marmo, infissi in legno/alluminio con doppio vetro, porte in legno e impianti in ottimo stato. Il riscaldamento autonomo garantisce gestione indipendente dei consumi.

L’ingresso accompagna in un soggiorno ampio e accogliente, uno spazio pensato per vivere momenti di relax e convivialità, impreziosito dall’affaccio sul balcone che dona luce naturale durante tutto l’arco della giornata. A servizio della zona giorno troviamo un cucinino funzionale e ben organizzato, separato ma perfettamente integrato nella dinamica della zona notte offre due camere da letto spaziose, ideali per chi desidera ambienti ben proporzionati e silenziosi, oltre a doppi servizi e un pratico ripostiglio che completa la funzionalità dell’abitazione.

Completa la soluzione un box auto al piano interrato di circa 17 mq, elemento sempre più ricercato per comfort e sicurezza.

Una proposta ideale per chi è alla ricerca di una casa pronta da vivere, in un contesto residenziale elegante, ben servito e centrale, senza rinunciare alla tranquillità di uno stabile curato nei dettagli.

Mostra tutto

Nelle vicinanze

Trasporto pubblico Trasporto pubblico
stazione di Foggia
stazione di Foggia
1,2 Km
Trasporto pubblico
340 m
Italia
Italia
460 m
Ricariche auto elettriche Ricariche auto elettriche
Enel PAN Foggia Viale degli Aviatori
990 m
Concessionario Nissan Renauto S.P.A.
1,7 Km
Daunia Soccorso Foggia | EnelX
2,0 Km
Scuole Scuole
Scuole
310 m
Nicola Parisi
350 m
Istituto Comprensivo Parisi - De Sanctis
390 m
Università degli Studi di Foggia
550 m
Istituto Tecnico Industriale Statale "S. Altamura"
590 m
Farmacia Farmacia
Farmacia dell'Immacolata
10 m
Farmacia San Marco
430 m
Parafarmacia Dottoressa Pedone
440 m
Farmacia
450 m
Telesforo
480 m
Ospedali Ospedali
Casa di Cura "Maria Grazia Barone"
330 m
Clinica Colonnello D'Avanzo
550 m
ASL FG
1,4 Km
Clinica S. Francesco
1,5 Km
Dipartimento Dipendenze Patologiche
1,8 Km
Supermercati Supermercati
Alter Discount
180 m
Sigma
340 m
Dok Supermercati
400 m
Despar
640 m
Punto Market
740 m
Negozi Negozi
Uli-Style
470 m
Negozi
530 m
Halfon
640 m
The Other Side Man
690 m
I Figli di Papà
700 m
Bar Bar
Bar Pasticceria Catalano
340 m
Caffetteria cornetteria Simonetti
420 m
Bar Fiocco di neve
520 m
Cafes de Paris
540 m
Caffetteria napoletana
570 m
Ristoranti Ristoranti
Ambasciata Orsarese
160 m
Pizza e Sfizi
330 m
Barbecue
490 m
Kaminetto
570 m
Ristorante enoteca Leonardo
620 m
Mostra tutto

Caratteristiche

Rif.:
61184063
Piano:
2 di 6 con ascensore (Piano medio)
Box:
1
Balconi:
1
Camere da letto:
2
Arredamento:
Assente
Mostra tutto
Prezzo Prezzo
€ 179.000
Rata mutuo Rata mutuo
€ 850 / mese
Spese annue Spese annue
€ 480
Proponi il tuo prezzoProponi il tuo prezzo

Classe Energetica

D
D
D
D
D
D
D
D
D
EP invernale del fabbricato:
EP estiva del fabbricato:
Anno di costruzione:
1997
Riscaldamento:
Autonomo
Tipo impianto:
A radiatori
Tipo alimentazione:
Metano

Ti interessa visionare l'immobile?

Fissa un appuntamento  Fissa un appuntamento

Richiedi informazioni

Clicca su Leggi per aprire l'informativa
* Questi campi sono obbligatori

Calcola il tuo mutuo

Semplice e senza impegno
Anticipo

( % )
Mutuo

( % )

pochi semplici passi

inserisci i tuoi dati
Questionario completato
Grazie per aver richiesto un appuntamento senza impegno con un nostro Consulente del Credito e Assicurativo.

Hai inserito correttamente tutti i dati necessari e a breve riceverai una e-mail con un link da convalidare per inviare i tuoi dati.
Affiliato
Fovea Group Sas
Viale Cristoforo Colombo, 6 71121 Foggia (FG)

Il nostro staff


  • Filippo Martucci
    Affiliato

  • Rosanna D' Agnone
    Coordinatrice

  • Erika Bernardo
    Coordinatrice

  • Flavio Galano
    Collaboratore
Viale Cristoforo Colombo, 6 71121 Foggia (FG)
Zona: Foggia-Immacolata-Viale Michelangelo-P.zza Padre Pio
Mostra su mappa
Orari: dal lunedì al venerdì mattina dalle ore 9.00 alle 13.00 pomeriggio dalle ore 16.00 alle 20.00; sabato dalle ore 9.00 alle ore 13.00.
Affiliato
Fovea Group Sas
Viale Cristoforo Colombo, 6 71121 Foggia (FG)

2026 Tecnocasa Franchising S.p.A. - P. IVA 08365160152 - Via Monte Bianco 60/A 20089 Rozzano (MI). Ogni agenzia ha un proprio titolare ed è autonoma. Privacy policy | Policy utilizzo | Cookie policy