Quadrilocale in vendita

Foggia, Via Lecce - Immacolata
€ 109.000
4 locali 4 locali
148 Mq 148 Mq
1 bagno 1 bagno

Quadrilocale in vendita

Foggia, Via Lecce - Immacolata

Descrizione annuncio

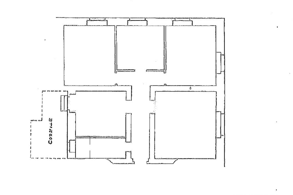
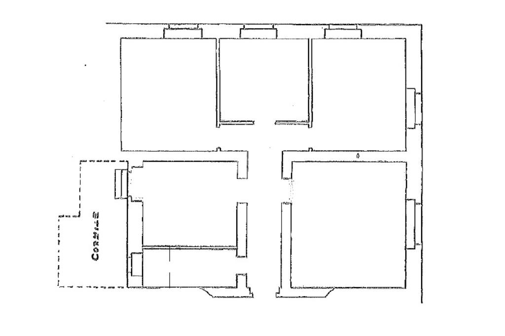
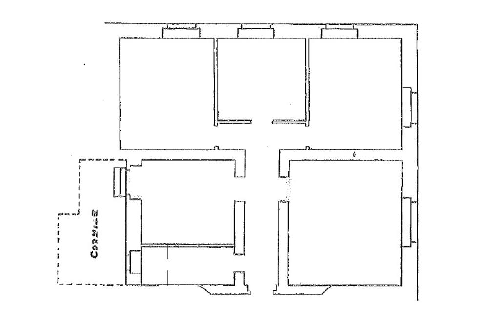
Zona Roma - Via Lecce - In una zona tranquilla e ben servita, a pochi passi da Corso Roma, proponiamo in vendita un appartamento di 4 VANI oltre accessori situato al piano rialzato di uno stabile con facciata recentemente ristrutturata.

L’immobile si presenta parzialmente ristrutturato e combina in modo armonioso elementi d’epoca e finiture moderne.
Gli ambienti sono ampi, luminosi e ben distribuiti con pavimentazione in cementine originali, autentico richiamo al fascino delle abitazioni storiche e laminato effetto parquet, perfettamente integrato nel contesto.

La soluzione, inoltre, presenta infissi in PVC con doppio vetro ed inferriate che garantiscono comfort e sicurezza, porte in legno ed impianti in discreto stato.

A rendere questa soluzione ancora più interessante è la corte privata di circa 12 mq, ideale per chi desidera uno spazio esterno riservato dove rilassarsi o coltivare un piccolo angolo verde.

La proprietà dispone inoltre di una comoda cantinola al piano interrato, perfetta come deposito o ripostiglio.

La tripla esposizione assicura una piacevole luminosità durante tutto l’arco della giornata.

Attualmente locato con ottima rendita mensile fino al 2028, rappresenta un’eccellente opportunità d’investimento, ideale per chi cerca un immobile già a reddito.

Seguici su Facebook e su Instagram cliccando 'mi piace' sulla pagina Agenzia Tecnocasa Foggia Immacolata o contattaci attraverso il nostro canale Whatsapp al numero 371.4123892 per avere maggiori informazioni sui nostri immobili.

Scarica gratuitamente anche l'App Tecnocasa sul tuo smartphone per essere sempre aggiornato sulle nostre proposte di vendita e locazione.

Inoltre, tramite la nostra agenzia hai la possibilità, previo appuntamento, di incontrare un Collaboratore di Kiron Partner SpA, la società di mediazione creditizia del Gruppo Tecnocasa, per effettuare una consulenza reddituale e poter richiedere il mutuo adatto alle tue esigenze.

Mostra tutto

Nelle vicinanze

Trasporto pubblico Trasporto pubblico
stazione di Foggia
stazione di Foggia
990 m
Trasporto pubblico
180 m
Italia
Italia
310 m
Ricariche auto elettriche Ricariche auto elettriche
Enel PAN Foggia Viale degli Aviatori
1,2 Km
Concessionario Nissan Renauto S.P.A.
1,6 Km
Daunia Soccorso Foggia | EnelX
1,8 Km
Scuole Scuole
Scuole
220 m
Università degli Studi di Foggia
390 m
Istituto Tecnico Industriale Statale "S. Altamura"
430 m
Istituto Comprensivo Parisi - De Sanctis
490 m
Nicola Parisi
490 m
Farmacia Farmacia
Farmacia dell'Immacolata
190 m
Farmacia
310 m
Telesforo
370 m
Parafarmacia Dottoressa Pedone
400 m
San Ciro
470 m
Ospedali Ospedali
Casa di Cura "Maria Grazia Barone"
490 m
Clinica Colonnello D'Avanzo
730 m
ASL FG
1,2 Km
Clinica S. Francesco
1,7 Km
Dipartimento Dipendenze Patologiche
1,8 Km
Supermercati Supermercati
Dok Supermercati
250 m
Alter Discount
300 m
Sigma
520 m
Despar
560 m
Convì
640 m
Negozi Negozi
Uli-Style
330 m
Negozi
510 m
Halfon
560 m
The Other Side Man
560 m
MaleFemale
610 m
Bar Bar
Bar Pasticceria Catalano
170 m
Caffetteria napoletana
490 m
Wals Bar
500 m
Gelateria Gabrielino
540 m
Caffetteria cornetteria Simonetti
600 m
Ristoranti Ristoranti
Pizza e Sfizi
170 m
Ambasciata Orsarese
180 m
Barbecue
390 m
Kaminetto
500 m
Ristorante enoteca Leonardo
630 m
Mostra tutto

Caratteristiche

Rif.:
61135041
Piano:
Rialzato di 3
Totale piani:
3
Balconi:
1
Camere da letto:
3
Arredamento:
Assente
Mostra tutto
Prezzo Prezzo
€ 109.000
Rata mutuo Rata mutuo
€ 518 / mese
Spese annue Spese annue
€ 0
Proponi il tuo prezzoProponi il tuo prezzo

Classe Energetica

F
F
F
F
F
F
F
F
F
Anno di costruzione:
1939
Riscaldamento:
Autonomo
Tipo impianto:
A radiatori
Tipo alimentazione:
Metano

Ti interessa visionare l'immobile?

Fissa un appuntamento  Fissa un appuntamento

Richiedi informazioni

Clicca su Leggi per aprire l'informativa
* Questi campi sono obbligatori

Calcola il tuo mutuo

Semplice e senza impegno
Anticipo

( % )
Mutuo

( % )

pochi semplici passi

inserisci i tuoi dati
Questionario completato
Grazie per aver richiesto un appuntamento senza impegno con un nostro Consulente del Credito e Assicurativo.

Hai inserito correttamente tutti i dati necessari e a breve riceverai una e-mail con un link da convalidare per inviare i tuoi dati.
Affiliato
Fovea Group Sas
Viale Cristoforo Colombo, 6 71121 Foggia (FG)

Il nostro staff


  • Filippo Martucci
    Affiliato

  • Rosanna D' Agnone
    Coordinatrice

  • Erika Bernardo
    Coordinatrice

  • Flavio Galano
    Collaboratore
Viale Cristoforo Colombo, 6 71121 Foggia (FG)
Zona: Foggia-Immacolata-Viale Michelangelo-P.zza Padre Pio
Mostra su mappa
Orari: dal lunedì al venerdì mattina dalle ore 9.00 alle 13.00 pomeriggio dalle ore 16.00 alle 20.00; sabato dalle ore 9.00 alle ore 13.00.
Affiliato
Fovea Group Sas
Viale Cristoforo Colombo, 6 71121 Foggia (FG)

2026 Tecnocasa Franchising S.p.A. - P. IVA 08365160152 - Via Monte Bianco 60/A 20089 Rozzano (MI). Ogni agenzia ha un proprio titolare ed è autonoma. Privacy policy | Policy utilizzo | Cookie policy