Trilocale in vendita

Foggia, Viale Michelangelo - Immacolata
€ 189.000
3 locali 3 locali
125 Mq 125 Mq
1 bagno 1 bagno

Trilocale in vendita

Foggia, Viale Michelangelo - Immacolata

Descrizione annuncio

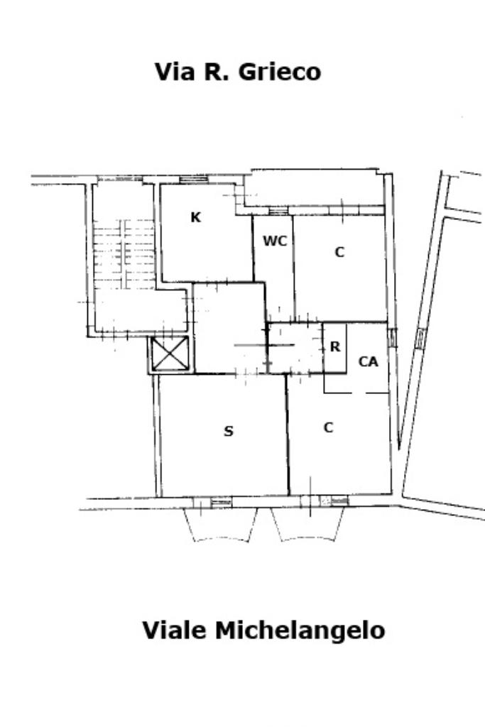
Viale Michelangelo - In zona ben servita ed in stabile signorile, proponiamo in vendita appartamento al piano medio composto da 3 VANI oltre accessori.

L'immobile, completamente ristrutturato, offre un ambiente accogliente e funzionale con pavimentazione unica in parquet, infissi in pvc con doppio vetro a taglio termico e zanzariere, porte interne in legno, porta blindata, impianto di climatizzazione ed impianti idrico ed elettrico in ottimo stato.

La zona giorno è luminosa e spaziosa, ideale per momenti di relax e convivialità. Grazie alla doppia esposizione, l’immobile risulta particolarmente luminoso e arioso. A completare il comfort, tende da sole a braccio già installate.

La camera da letto principale è dotata di una comoda cabina armadio, offrendo spazio e praticità.

La posizione su Viale Michelangelo garantisce un facile accesso a tutti i servizi essenziali, rendendo la vita quotidiana semplice e piacevole. La zona è ben servita da negozi, scuole e mezzi pubblici, assicurando comodità e facilità di spostamento.

Un'opportunità unica per chi cerca una soluzione abitativa di qualità in una delle aree più apprezzate di Foggia.

Seguici su Facebook e su Instagram cliccando 'mi piace' sulla pagina Agenzia Tecnocasa Foggia Immacolata o contattaci attraverso il nostro canale Whatsapp al numero 371.4123892 per avere maggiori informazioni sui nostri immobili.
Scarica gratuitamente anche l'App Tecnocasa sul tuo smartphone per essere sempre aggiornato sulle nostre proposte di vendita e locazione.

Inoltre, tramite la nostra agenzia hai la possibilità, previo appuntamento, di incontrare un Collaboratore di Kiron Partner SpA, la società di mediazione creditizia del Gruppo Tecnocasa, per effettuare una consulenza reddituale e poter richiedere il mutuo adatto alle tue esigenze.

Mostra tutto

Nelle vicinanze

Trasporto pubblico Trasporto pubblico
stazione di Foggia
stazione di Foggia
1,3 Km
Trasporto pubblico
140 m
Viale D. Vittorio
Viale D. Vittorio
280 m
Ricariche auto elettriche Ricariche auto elettriche
Enel PAN Foggia Viale degli Aviatori
1,3 Km
Concessionario Nissan Renauto S.P.A.
1,8 Km
Daunia Soccorso Foggia | EnelX
2,1 Km
Scuole Scuole
Scuola Elementare "San Pio X"
250 m
Istituto Tecnico per Geometri "Eugenio Masi"
320 m
Istituto Tecnico Industriale Statale "S. Altamura"
440 m
Scuole
630 m
Università di Foggia - Aula Magna
630 m
Farmacia Farmacia
Farmacia Michelangelo
160 m
Farmacia San Pio
270 m
Farmacia Santa Rita
490 m
Farmacia San Michele
490 m
Farmacia San Marco
670 m
Ospedali Ospedali
ASL FG
820 m
Casa di Cura "Maria Grazia Barone"
970 m
Clinica Colonnello D'Avanzo
1,1 Km
Clinica S. Francesco
1,7 Km
Dipartimento Dipendenze Patologiche
2,4 Km
Supermercati Supermercati
Despar
80 m
Punto Market
130 m
Dok Supermercati
440 m
Alter Discount
590 m
Sigma
840 m
Negozi Negozi
Uli-Style
870 m
Piazza Cina
930 m
The Other Side Man
1,1 Km
Negozi
1,1 Km
MaleFemale
1,1 Km
Bar Bar
Glamour
470 m
Bar Fiocco di neve
540 m
Bar Pasticceria Catalano
700 m
Wasabi Café
800 m
Caffetteria cornetteria Simonetti
850 m
Ristoranti Ristoranti
Pizza e Sfizi
720 m
Ambasciata Orsarese
790 m
Barbecue
970 m
Kaminetto
1,1 Km
Ristorante enoteca Leonardo
1,3 Km
Mostra tutto

Caratteristiche

Rif.:
61121849
Piano:
3 di 8 con ascensore (Piano medio)
Balconi:
3
Camere da letto:
2
Arredamento:
Assente
Condizionamento:
Autonomo
Mostra tutto
Prezzo Prezzo
€ 189.000
Rata mutuo Rata mutuo
€ 892 / mese
Spese annue Spese annue
€ 540
Proponi il tuo prezzoProponi il tuo prezzo

Classe Energetica

E
E
E
E
E
E
E
E
E
Anno di costruzione:
1965
Riscaldamento:
Autonomo
Tipo impianto:
A radiatori
Tipo alimentazione:
Metano

Ti interessa visionare l'immobile?

Fissa un appuntamento  Fissa un appuntamento

Richiedi informazioni

Clicca su Leggi per aprire l'informativa
* Questi campi sono obbligatori

Calcola il tuo mutuo

Semplice e senza impegno
Anticipo

( % )
Mutuo

( % )

pochi semplici passi

inserisci i tuoi dati
Questionario completato
Grazie per aver richiesto un appuntamento senza impegno con un nostro Consulente del Credito e Assicurativo.

Hai inserito correttamente tutti i dati necessari e a breve riceverai una e-mail con un link da convalidare per inviare i tuoi dati.
Affiliato
Fovea Group Sas
Viale Cristoforo Colombo, 6 71121 Foggia (FG)

Il nostro staff


  • Filippo Martucci
    Affiliato

  • Rosanna D' Agnone
    Coordinatrice

  • Flavio Galano
    Collaboratore

  • Andrea Mancini
    Collaboratore
Viale Cristoforo Colombo, 6 71121 Foggia (FG)
Zona: Foggia-Immacolata-Viale Michelangelo-P.zza Padre Pio
Mostra su mappa
Orari: dal lunedì al venerdì mattina dalle ore 9.00 alle 13.00 pomeriggio dalle ore 16.00 alle 20.00; sabato dalle ore 9.00 alle ore 13.00.
Affiliato
Fovea Group Sas
Viale Cristoforo Colombo, 6 71121 Foggia (FG)

2025 Tecnocasa Franchising S.p.A. - P. IVA 08365160152 - Via Monte Bianco 60/A 20089 Rozzano (MI). Ogni agenzia ha un proprio titolare ed è autonoma. Privacy policy | Policy utilizzo | Cookie policy