6 locali in vendita

Foggia, Via Lecce - Immacolata
€ 208.000
Prezzo aggiornato
6 locali 6 locali
260 Mq 260 Mq
2 bagni 2 bagni

6 locali in vendita

Foggia, Via Lecce - Immacolata

Descrizione annuncio

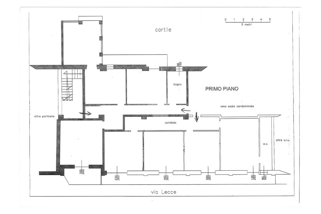
Zona Immacolata - Via Lecce - Nel cuore della zona Immacolata, in un contesto residenziale ben servito e apprezzato disponiamo di un appartamento di ampia metratura composto da 6 VANI oltre accessori DIVISIBILE in due unità abitative.

L'immobile si presenta allo stato originale con pavimentazione unica in marmo, infissi in legno ed impianti da rivedere.

L’ingresso accompagna verso un soggiorno doppio arioso, perfetto per accogliere famiglia e amici o per creare una zona living di grande rappresentanza. La cucina abitabile e separata è pensata per la quotidianità e la convivialità. La zona notte offre quattro camere da letto, capaci di adattarsi alle esigenze di famiglie numerose, professionisti che lavorano da casa o investitori alla ricerca di una soluzione facilmente frazionabile. I doppi servizi e il ripostiglio completano una distribuzione interna funzionale, con la possibilità di ripristinare un secondo ingresso.

La tripla esposizione garantisce luminosità durante tutto l’arco della giornata e i due balconi permettono di vivere anche l’esterno, affacciandosi su una zona tranquilla ma centrale.

La posizione strategica, a pochi passi da servizi, scuole e attività commerciali, rende questa proposta una rara opportunità nella zona.

Seguici su Facebook cliccando 'mi piace' sulla pagina Agenzia Tecnocasa Foggia Immacolata o contattaci attraverso il nostro canale Whatsapp al numero 371.4123892 per avere maggiori informazioni sui nostri immobili.
Scarica gratuitamente anche l'App Tecnocasa sul tuo smartphone per essere sempre aggiornato sulle nostre proposte di vendita e locazione.

Inoltre, tramite la nostra agenzia hai la possibilità, previo appuntamento, di incontrare un Collaboratore di Kiron Partner SpA, la società di mediazione creditizia del Gruppo Tecnocasa, per effettuare una consulenza reddituale e poter richiedere il mutuo adatto alle tue esigenze.

LA CONSULENZA E' GRATUITA.

Mostra tutto

Nelle vicinanze

Trasporto pubblico Trasporto pubblico
stazione di Foggia
stazione di Foggia
1,0 Km
Trasporto pubblico
170 m
Viale D. Vittorio
Viale D. Vittorio
360 m
Ricariche auto elettriche Ricariche auto elettriche
Enel PAN Foggia Viale degli Aviatori
1,2 Km
Concessionario Nissan Renauto S.P.A.
1,6 Km
Daunia Soccorso Foggia | EnelX
1,9 Km
Scuole Scuole
Scuole
240 m
Istituto Tecnico Industriale Statale "S. Altamura"
340 m
Istituto Tecnico per Geometri "Eugenio Masi"
420 m
Università degli Studi di Foggia
450 m
Università di Foggia _ Dipartimento di Economia
500 m
Farmacia Farmacia
Farmacia dell'Immacolata
260 m
Farmacia
400 m
Farmacia Michelangelo
450 m
Telesforo
480 m
Farmacia San Marco
540 m
Ospedali Ospedali
Casa di Cura "Maria Grazia Barone"
580 m
Clinica Colonnello D'Avanzo
790 m
ASL FG
1,1 Km
Clinica S. Francesco
1,7 Km
Dipartimento Dipendenze Patologiche
1,9 Km
Supermercati Supermercati
Dok Supermercati
150 m
Alter Discount
290 m
Despar
420 m
Punto Market
510 m
Sigma
550 m
Negozi Negozi
Uli-Style
430 m
Negozi
650 m
The Other Side Man
650 m
Halfon
680 m
MaleFemale
710 m
Bar Bar
Bar Pasticceria Catalano
250 m
Bar Fiocco di neve
550 m
Wals Bar
610 m
Caffetteria napoletana
620 m
Caffetteria cornetteria Simonetti
620 m
Ristoranti Ristoranti
Pizza e Sfizi
270 m
Ambasciata Orsarese
320 m
Barbecue
510 m
Kaminetto
630 m
Ristorante enoteca Leonardo
770 m
Mostra tutto

Caratteristiche

Rif.:
40418480
Piano:
1 di 6 con ascensore (Piano basso)
Box:
1
Balconi:
3
Camere da letto:
4
Arredamento:
Assente
Mostra tutto
Prezzo Prezzo
€ 208.000
Rata mutuo Rata mutuo
€ 980 / mese
Spese annue Spese annue
€ 0
Proponi il tuo prezzoProponi il tuo prezzo

Classe Energetica

G
G
G
G
G
G
G
G
G
EP globale non rinnovabile:
108.38 kW h/m² anno
EP globale rinnovabile:
108.38 kW h/m² anno
Anno di costruzione:
1961
Riscaldamento:
Autonomo
Tipo impianto:
A radiatori
Tipo alimentazione:
Metano

Prezzo ridotto di €1 (1%%)

Ti interessa visionare l'immobile?

Fissa un appuntamento  Fissa un appuntamento

Richiedi informazioni

Clicca su Leggi per aprire l'informativa
* Questi campi sono obbligatori

Calcola il tuo mutuo

Semplice e senza impegno
Anticipo

( % )
Mutuo

( % )

pochi semplici passi

inserisci i tuoi dati
Questionario completato
Grazie per aver richiesto un appuntamento senza impegno con un nostro Consulente del Credito e Assicurativo.

Hai inserito correttamente tutti i dati necessari e a breve riceverai una e-mail con un link da convalidare per inviare i tuoi dati.
Affiliato
Fovea Group Sas
Viale Cristoforo Colombo, 6 71121 Foggia (FG)

Il nostro staff


  • Filippo Martucci
    Affiliato

  • Rosanna D' Agnone
    Coordinatrice

  • Flavio Galano
    Collaboratore

  • Andrea Mancini
    Collaboratore
Viale Cristoforo Colombo, 6 71121 Foggia (FG)
Zona: Foggia-Immacolata-Viale Michelangelo-P.zza Padre Pio
Mostra su mappa
Orari: dal lunedì al venerdì mattina dalle ore 9.00 alle 13.00 pomeriggio dalle ore 16.00 alle 20.00; sabato dalle ore 9.00 alle ore 13.00.
Affiliato
Fovea Group Sas
Viale Cristoforo Colombo, 6 71121 Foggia (FG)

2026 Tecnocasa Franchising S.p.A. - P. IVA 08365160152 - Via Monte Bianco 60/A 20089 Rozzano (MI). Ogni agenzia ha un proprio titolare ed è autonoma. Privacy policy | Policy utilizzo | Cookie policy